Kisaran harga: Dari sampai

Bandingkan Daftar

WISTERIA PHASE 2

Residential
Mulai dari Rp 1.600.000.000

Brosur PDF

  • E Brosur Wisteria phase 2 - FA
Developer :KEPPEL LAND
Property ID : CP-4936

BREAKING NEWS NEW PROPERTY by KEPPEL – METLAND JO!!!

Jenuh investasi di barat Jakarta?

Jumlah Unit rumah kosong masi banyak!!! yakinkah kenaikan tinggi?

 

Saatnya Investasi di Jakarta Timur!!!

  • Pengembangan akses TOl ke timur Jakarta semakin gencar
  • Pembanguna koneksi LRT sampai ke timur Jakarta

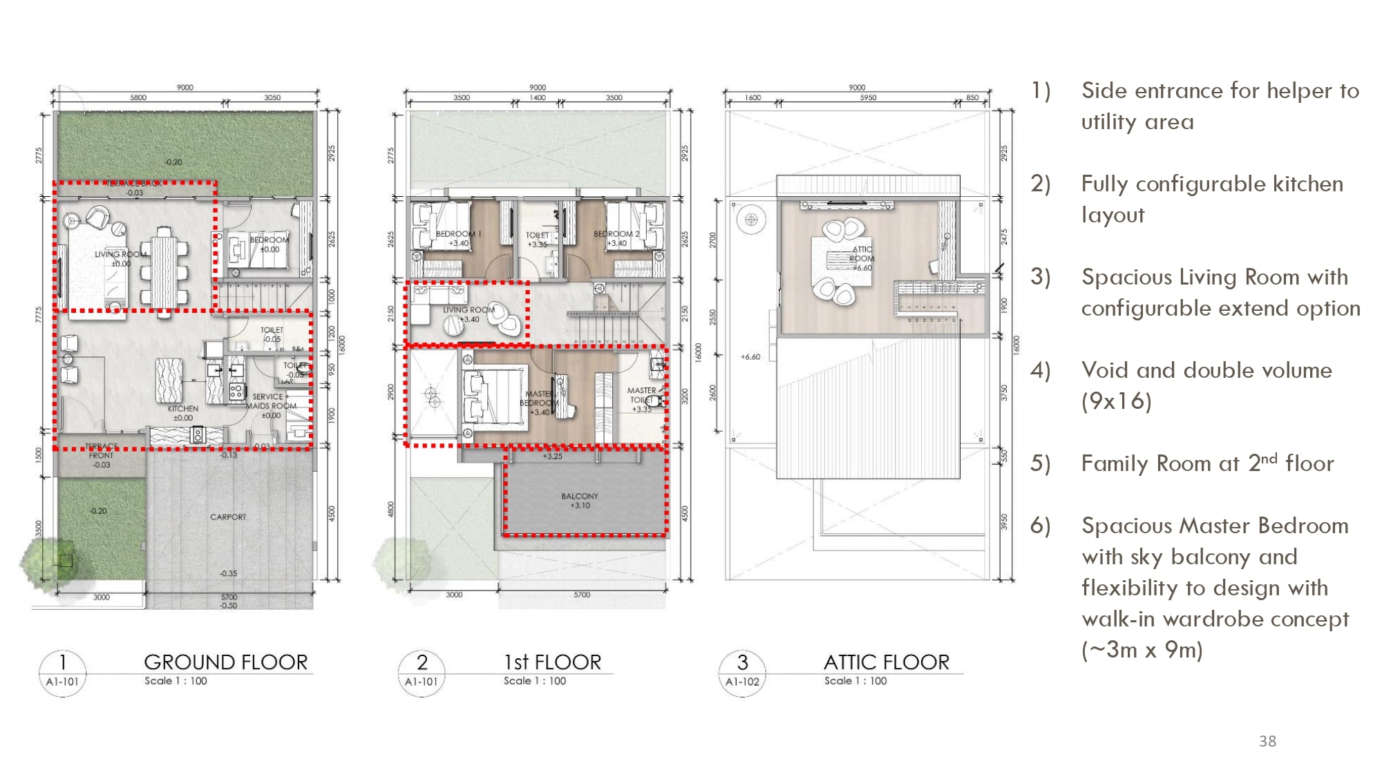
Setelah sukses dengan Project “WISTERIA PHASE1”, Keppel Land & Metland JO mempersembahkan WISTERIA PHASE2

Project Landed House terbaru di Jakarta Timur dengan konsepCluster yang lebih kuat dan pastinya investor friendly.

 

Untuk informasi Harga, Detil, KPR, KPA, Kunjungan Show Unit, Discount & PROMO, Hubungi KAMI  :

KAMI REAL ESTATE

Hotline  : 0819 9000 1919

 

Keinginan Anda, PRIORITAS KAMI

Info kontak

KEPPEL LAND
0819 9000 1919

Tanyakan tentang properti ini